中文
|
EN
|
繁体
国机集团网站群
首页
乐动(中国)
新闻中心
业务领域
科技创新
企业文化
党群建设
人力资源
社会责任
所属企业
招标采购
联系我们
信息公开
设计咨询
城市规划
设计咨询
工程咨询
城市规划
医疗建筑
养老建筑
文化观演建筑
酒店建筑
教育建筑
体育建筑
城市综合体
办公建筑
科研建筑
海外建筑
生物实验
工业工程
机场物流
能源环境
室内设计
景观设计
城市规划
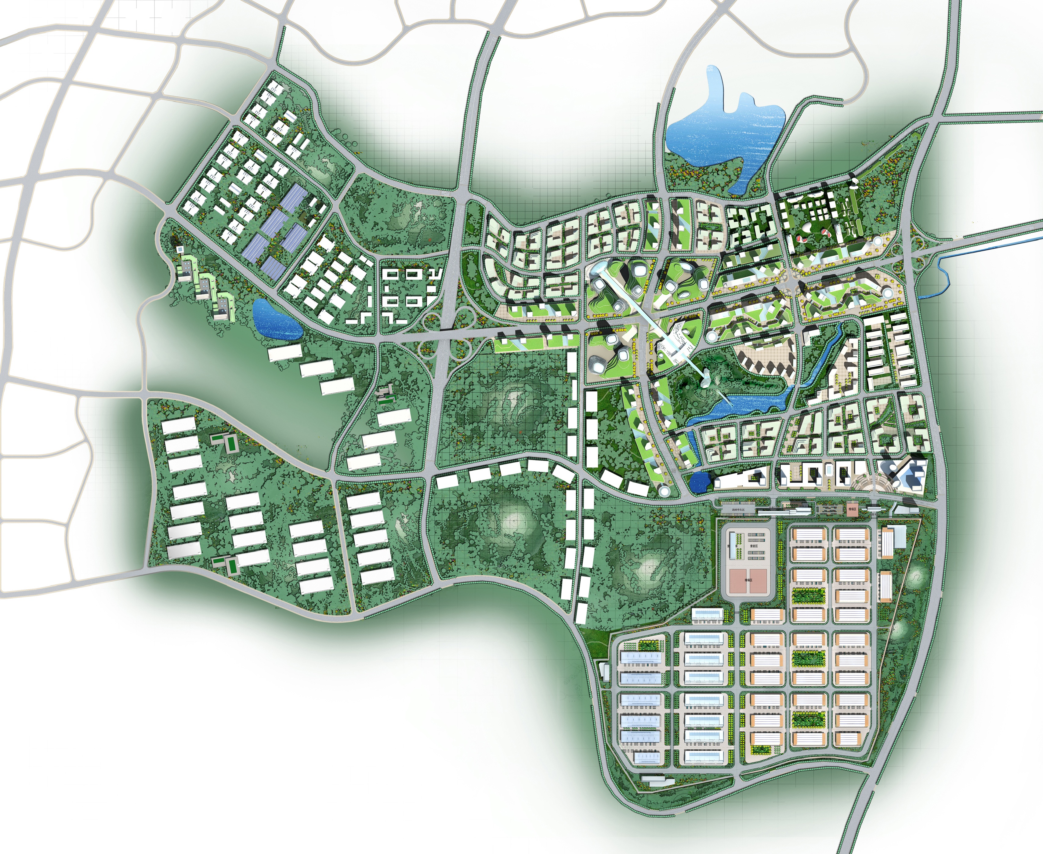
贵州云谷发展规划及城市设计
发布时间:[2019-01-25]
文章来源:
【
大
中
小
】
用地规模:
11.45
平方公里
设计时间:
2014
年
项目地点:贵州省贵安新区
开云体云APP官网入口
|
华体会平台
|
华体会官方网页版
|
kaiyun开云网页版
|
米兰官方端网站登录入口
|
乐动官方网站
|
九游网页版登录入口
|
乐动官方网站
|
华体网
|